ロジランドは2月26日、福岡県小郡市にて、「LOGI LAND小郡鳥栖インターⅠ・Ⅱ」の開発用地を取得したと発表した。
ロジランドが開発する物流施設では九州エリア第一号案件となる。
物件は、長崎自動車道「鳥栖」ICから約2.3km(車で約6分)に位置する。北部九州の高速道路の結節点となる「鳥栖」JCTを経由し、福岡市内への配送や九州全域をカバーする広域配送拠点に適した立地。
さらに、西鉄天神大牟田線「西鉄小郡」駅と甘木鉄道「小郡」駅から徒歩圏内と公共交通機関による通勤も可能。また、自動車通勤も多いエリアのため、本物件敷地内にⅠ・Ⅱ合計287台の乗用車駐車場を用意する計画。小郡市中心部の住宅地に近接する立地のため近隣からの雇用確保も期待できる。
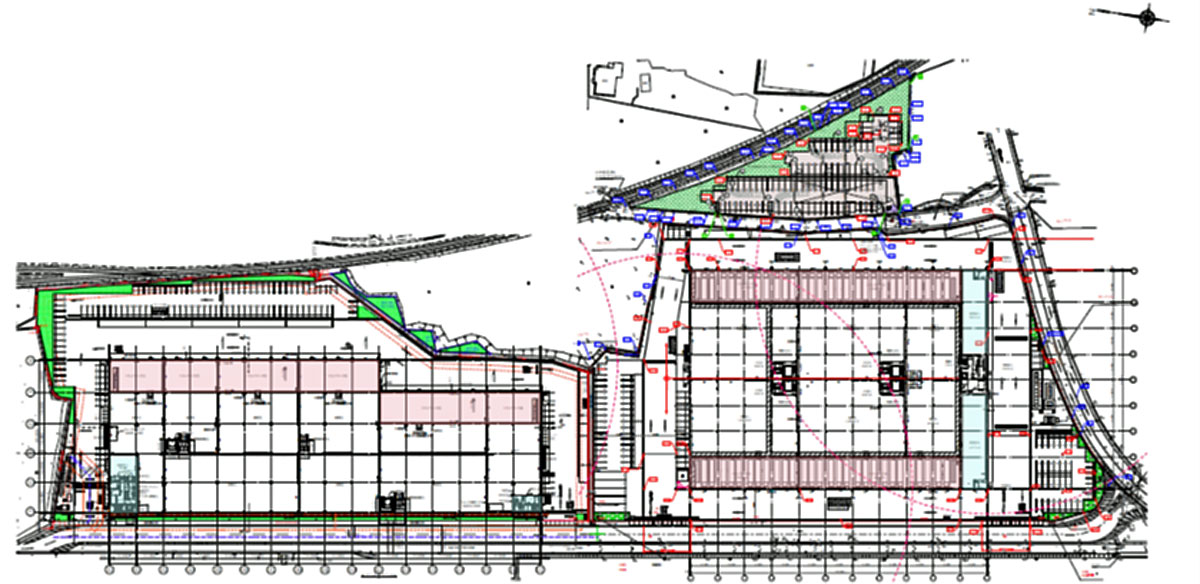
物件敷地(約4万7110m2)を南北に分けた2棟の物流施設を計画しており、開発敷地内には大型トラックやトレーラーが通行可能な道路を整備する。
まずは、敷地北側の「LOGI LAND 小郡鳥栖インターⅠ」から着工し、2025年冬頃の竣工を予定。延床約6780坪のBOXタイプの2階建てで、1棟・分割どちらの利用も可能な設計としている。荷物用エレベーター2基と垂直搬送機3基を実装し、階層を2層に抑えた仕様と縦搬送能力で効率的なオペレーションを実現していく。また、2024年問題の1つである「トラックの待機時間」を考慮して、スムーズな荷下ろしや積み込みができるように、トラックバースを広く確保。ランプウェイ型の施設と同程度のバース比率を想定している。
次いで、南側敷地の「LOGI LAND小郡鳥栖インターⅡ」は、敷地面積は約8035坪で、特定企業専用物流施設(BTS)としての開発も可能。需要の高まっている危険物倉庫や、クロスドックに対応した両面バースの採用など、入居企業のニーズや課題にあわせた施設の開発を計画している。
■「LOGI LAND小郡鳥栖インターⅠ・Ⅱ」物件概要
所在地:福岡県小郡市小郡
アクセス:長崎自動車道「鳥栖」ICから約2.3㎞
西鉄天神大牟田線「西鉄小郡」駅から約1.2km
LOGI LAND 小郡鳥栖インターⅠ
敷地面積:2万545.75m2(6215.08坪)
延床面積:2万2416.09m2(6780.86坪)
構造:鉄骨造
規模:地上2階建
竣工予定:2025年冬頃
LOGI LAND 小郡鳥栖インターⅡ
敷地面積:2万6564.52m2(8035.76坪)
延床面積:約1万坪
構造:鉄骨造
規模:地上3階建

